400-004-8111
案例介绍
现代轻奢
名称:华润 荣华府
楼盘:华润 荣华府
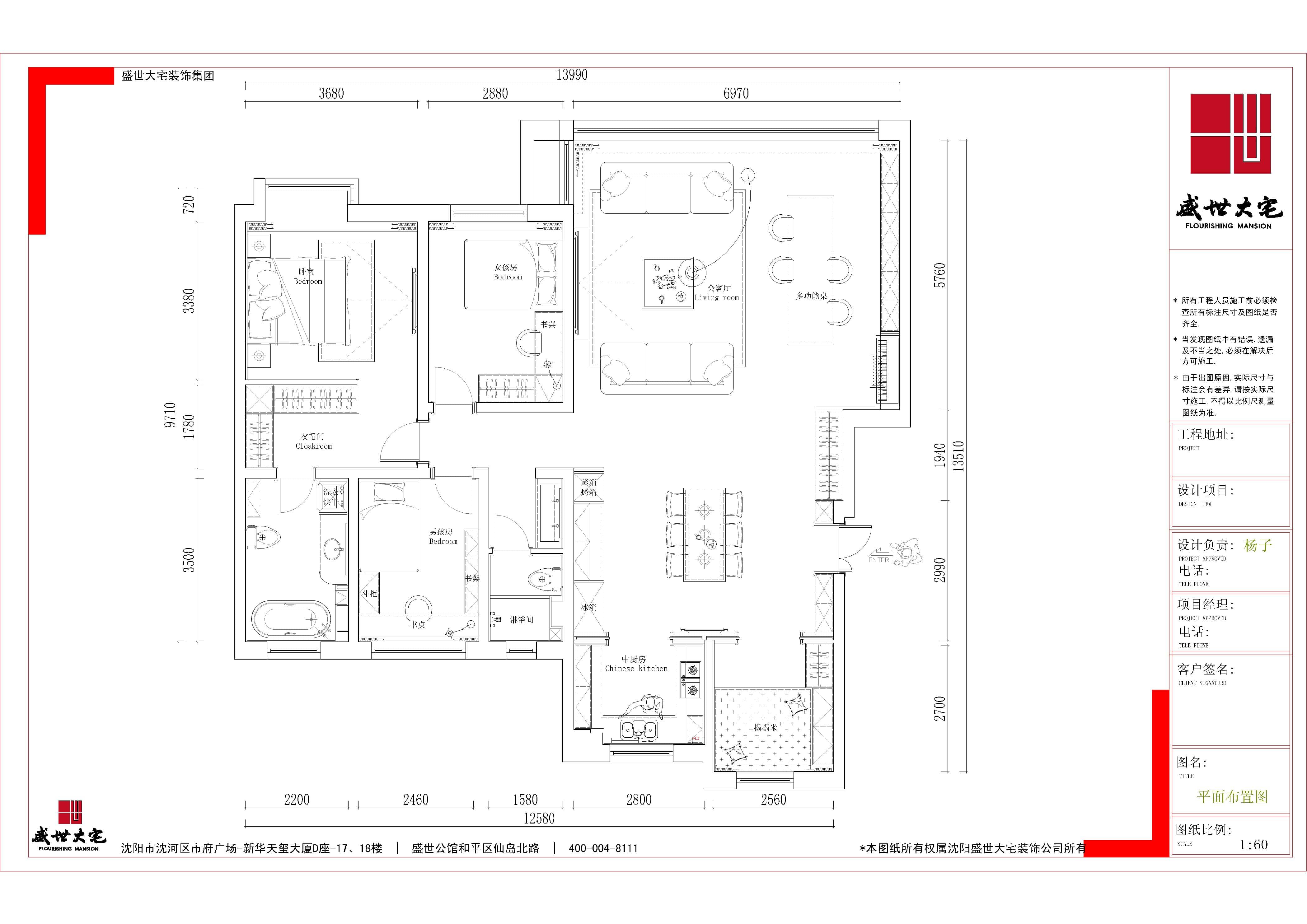
户型:平层
面积:164㎡
风格:现代轻奢
看看你装修需要花多少钱HOW MUCH DOES YOUR
RENOVATION COST
设计师:杨子
从业经验:22年
设计理念:设计以人为本,创造生活,改变生活
楼盘:华润 荣华府
户型:平层
面积:164㎡
风格:轻奢
设计说明:
客厅:有冲击力的色彩和定制花线及独特织物。营造具有特设的法式典雅感。
全景:以意想不到而又引人入胜的组合;以增加室内装饰的深度和特色,将每个空间都变成一幅充满诗意的画布。
厨房:墨绿色地柜与仿理石瓷砖的搭配,增加室内的反差,凸显干净又提升情调感。
卧室:融入了摩洛哥手工艺的丰富色彩和纹理,包括独特的石膏饰面,创造出和谐的艺术构图。
卫生间:仿壁纸瓷砖与意大利手工彩砖的碰撞,为整个空间的艺术叙事做出贡献。
收起 >>
相关案例推荐
预约设计
智能报价
参观工地
关注我们
微信扫一扫
回顶部



